Development Application for Bus Depot Expansion
Project Background
Bus company U-Go Mobility sought to increase bus parking capacity at its Kingsgrove bus depot to provide for growth. TK Business Group was engaged to assemble the Development Application package required for change-of-use of an adjoining warehouse to facilitate the expansion.
Program Scope
TK Business Group was engaged to coordinate a development application submission for the expansion of an existing bus depot site into an adjacent site, to provide additional bus parking capacity for the depot. Expansion into the adjacent site amounts to a change of use of that premises.
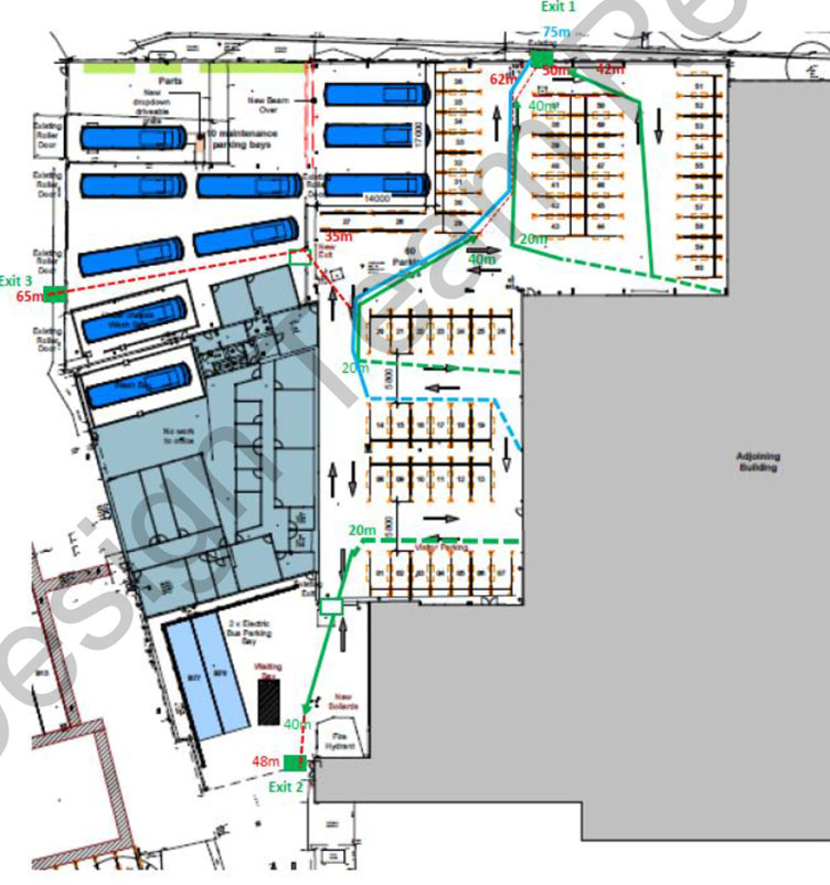
TK Business Group worked with the required sub-consultants including building surveyor for preparation of the BCA capability report, architect to document the planned alterations, traffic consultant to provide a traffic assessment, acoustic consultant to provide a noise assessment, hydraulic engineer to document a flood risk assessment and town planner to prepare the Statement of Environmental Effects and lodge the DA on behalf of the client. TK played a key role in ensuring the DA submission was robust, and in providing prompt feedback to Council’s RFI.
Post-lodgement of the DA, TK engaged the sub-consultants necessary to address BCA compliance matters that would foreseeably come about post-consent, namely pertaining to fire safety, accessibility and mechanical ventilation, noting in particular that the site to be expanded into could not meet the Deemed to Satisfy provisions of the BCA regarding fire safety and would instead require a performance solution.
TK worked closely with the fire engineer, mechanical engineer and access consultant to progress BCA considerations while the DA was under assessment in order to be in a position to move forward more quickly once development consent was obtained.
Program Highlights
Intensifying the use of an existing bus depot site will ultimately improve the public transport offering to the locals by being able to house more buses on the site, and hence have more buses available for service delivery.








